- Heritage
- £81k – £100k
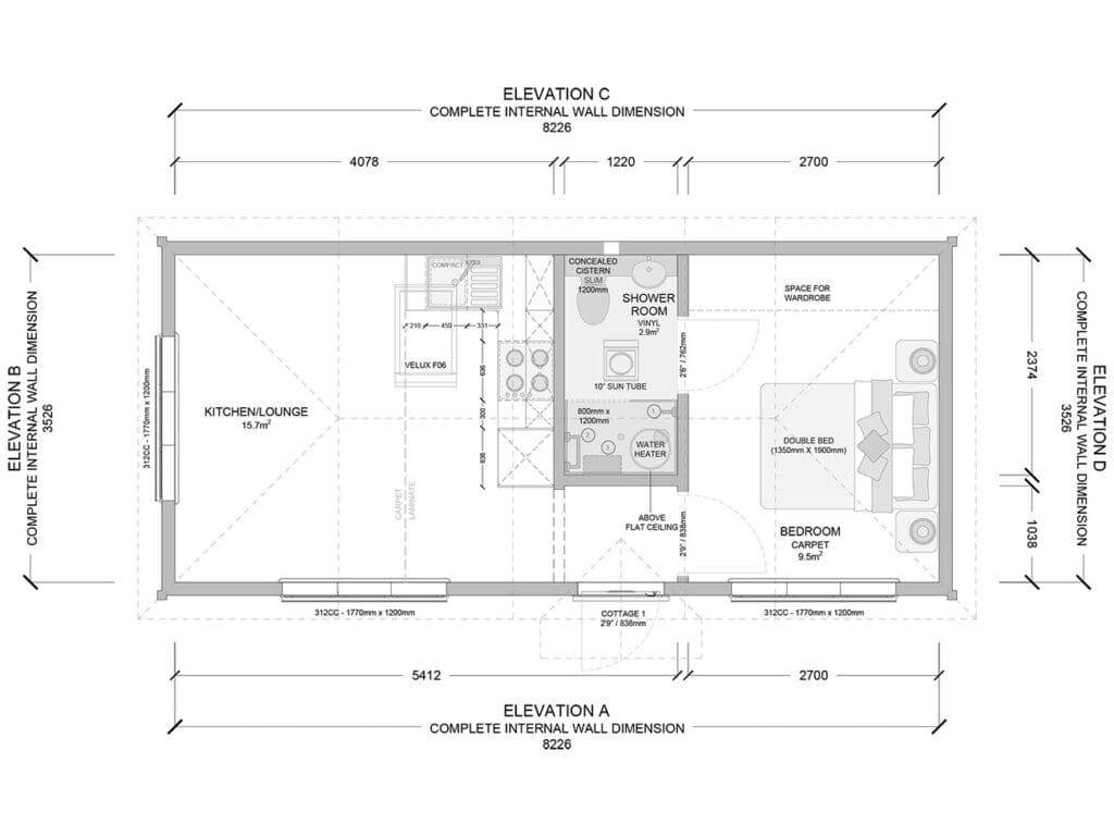
- One Bedroom
What’s Included
Our published prices are a guide and include the following as standard:
Our annexes are engineered to conform to the requirements of the Mobile Home Act, and they exceed the requirements for the British Standard BS3632 so your new lodge stays comfortable all year round. Provided that the annexe is used as ancillary accommodation to the main dwelling house, planning permission is not required.
For peace of mind, we always apply for a Certificate of Lawful Development from your local council, thereby ensuring you have a legal document prior to your works commencing. We have a wealth of experience and a 100% success rate of not requiring planning permission.
We offer an unconditional 10-year guarantee on the structure of all our Homelodges. For further peace of mind and to keep your lodge in optimum condition, we offer a 6-year annual maintenance service whereby we will write to you advising that maintenance is due and offering a quote to carry out the works.
Talk to our expert sales team today
The best way to experience a premium Homelodge granny annexe is by visiting our show site. Or maybe you just have some questions. Whatever you need, our friendly and attentive team can help; get in touch with us today to get started.
"*" indicates required fields