What’s Included

Our published prices are a guide and include the following as standard:

  • Structure: The annexe components are manufactured by our Hampshire-based workshop team before being delivered to site and installed. Come and visit us to see our factory in person and see our team in action.
  • Internal decoration: The internal walls are lined with plasterboard and painted with emulsion paint. The skirting, pelmet, hip ridges, trusses, and ridge beam are decorated with a choice of paint options.
  • External decoration: The walling, fascia, soffit, windows, and doors are decorated with a microporous paint. During your final details meeting, you will have a choice of window options, all with superior double-glazing.
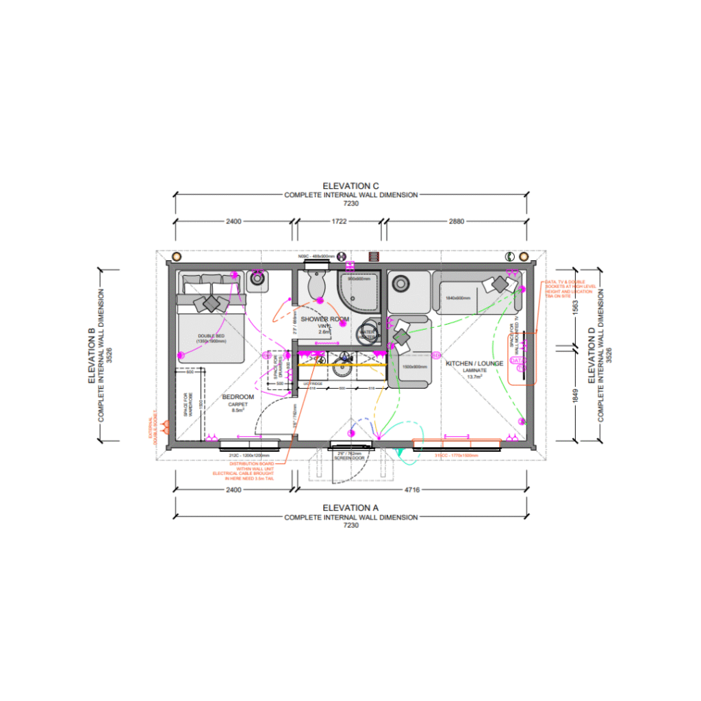
  • Electrical: All wiring within the lodge is back to a suitable consumer unit. Lights in the main room are LED spotlights fitted to the pelmets or pendant lights hung from the ridge. A bulkhead or PIR light is fitted outside the main entrance door, and we offer a choice of other external lighting options.
  • Heating: Thermostatically controlled wall mounted electric convector heaters with time-switches or underfloor heating. Kitchens and bathrooms are fitted with an unvented pressurised hot water system. The shower has an independent water heater to the basin and sink.
  • Bathroom/Shower Room(s): You have full control over the design of your bespoke bathroom.
  • Kitchen: Each annexe is tailored specifically to your needs so that can choose your dream kitchen.
  • Colour Schemes: Choose from a wide range of stains and paints for the external and internal colour scheme.

Planning Permission

Our annexes are engineered to conform to the requirements of the Mobile Home Act, and they exceed the requirements for the British Standard BS3632 so your new lodge stays comfortable all year round. Provided that the annexe is used as ancillary accommodation to the main dwelling house, planning permission is not required.

For peace of mind, we always apply for a Certificate of Lawful Development from your local council, thereby ensuring you have a legal document prior to your works commencing. We have a wealth of experience and a 100% success rate of not requiring planning permission.

Our Guarantee

We offer an unconditional 10-year guarantee on the structure of all our Homelodges. For further peace of mind and to keep your lodge in optimum condition, we offer a 6-year annual maintenance service whereby we will write to you advising that maintenance is due and offering a quote to carry out the works.

Contact Us

Talk to our expert sales team today

The best way to experience a premium Homelodge granny annexe is by visiting our show site. Or maybe you just have some questions. Whatever you need, our friendly and attentive team can help; get in touch with us today to get started.

"*" indicates required fields

This field is for validation purposes and should be left unchanged.